Retour
Mandat : 11806

Paris 11ème 75011 Local commercial 170 m² 1 024 400 €

Envoyer

Description

Mandat : 11806

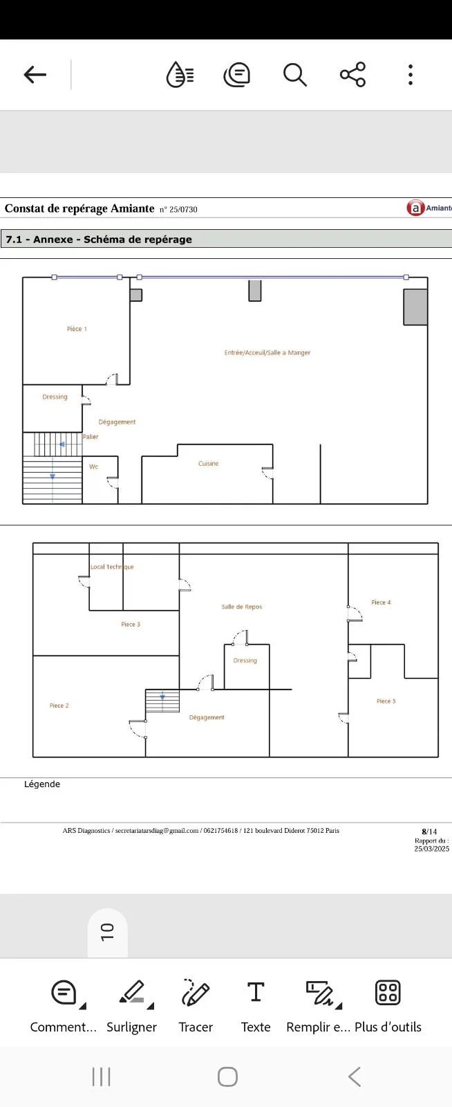
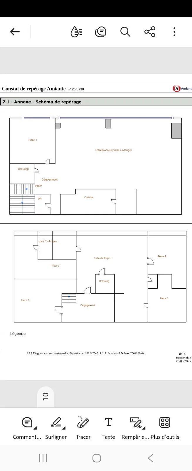
Découvrez cet espace commercial exceptionnel de 170 m² situé dans le quartier dynamique de Saint-Ambroise, Paris 11ème. Avec ses deux pièces spacieuses et un décor élégant avec un SPA et hammam, il offre un cadre idéal pour développer votre entreprise. Grâce à des équipements modernes tels que la climatisation et la fibre optique, cet espace est prêt à accueillir votre activité tout en garantissant un confort optimal.

L'accès est facilité par un ascenseur et des aménagements pour personnes à mobilité réduite, assurant ainsi une accessibilité pour tous vos clients. Le plafond suspendu ajoute à l'élégance de l'espace, créant une atmosphère accueillante et professionnelle. Vous bénéficierez également d'une connexion internet haut débit, essentielle pour le bon fonctionnement de votre entreprise.

Sa localisation dans le 11ème arrondissement de Paris, bien desservie par les transports en commun, en fait un lieu stratégique pour attirer une clientèle variée. Ne manquez pas cette opportunité de vous implanter dans un quartier en pleine expansion, idéal pour tout type de commerce. Cette annonce immobilière a été rédigée sous la responsabilité éditoriale de l'agent commercial mandataire immobilier Daniel ASSELIE.

Informations complémentaires

  • Air conditionné
  • Ascenseur
  • Internet
  • Accès handicapé
  • Fibre optique
  • Faux plafond
  • État general :  Bon état

Diagnostic énergétique

Bilan énergétique (DPE) Bilan énergétique (DPE) 227
Bilan gaz à effet de serre (GES) Bilan gaz à effet de serre (GES) 6
Version complète DPE/GES
DPE et GES
Honoraires d'agence

Demande d'information

Daniel Assélie • AgentMandataireCommerce.fr

Daniel Assélie Conseil en immobilier commercial 06 01 33 15 44