Retour
Mandat : 11802

Paris 11ème 75011 Local commercial 170 m² 5200€ cc/mois

Envoyer

Description

Mandat : 11802

LOCATION PURE LOCAL COMMERCIAL 75011 PARIS

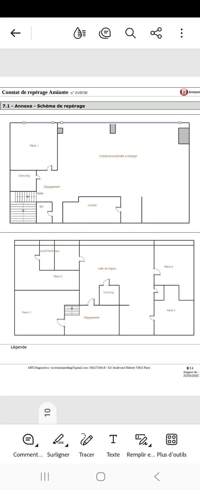
À louer, local commercial en location pure de 170 m² situé dans le 11ᵉ arrondissement de Paris, dans le quartier le plus animé de cet arrondissement, à proximité du métro Saint-Maur.

Ce dernier s'établit au RDC sur 70 m², avec accès direct au sous-sol de 100 m² avec un SPA et hammam et un linéaire de 14 mètres.
Le tout est exploitable pour tous types d'activités, sauf restauration avec extraction.
Un accès au sous-sol peut se faire par ascenseur dans les parties communes.

Loyer mensuel : 4 800 € HT/HC
Charges mensuelles : 400 € HT

N'hésitez pas à me contacter pour de plus amples informations. Une visite s'impose. Cette annonce immobilière a été rédigée sous la responsabilité éditoriale de l'agent commercial mandataire immobilier Daniel ASSELIE.

Informations complémentaires

  • Honoraires à charge de l'acquéreur : 
  • Honoraires TTC à la charge de l'acquéreur :  14850 €
  • Air conditionné
  • Internet
  • Accès handicapé
  • Ascenseur
  • Fibre optique
  • Faux plafond
  • Sauna
  • Spa
  • État general :  Bon état
  • Prix global :  5200€ cc/mois
  • charges locatives :  400€/mois

Diagnostic énergétique

Bilan énergétique (DPE) Bilan énergétique (DPE) 227
Bilan gaz à effet de serre (GES) Bilan gaz à effet de serre (GES) 6
Version complète DPE/GES
DPE et GES
Honoraires d'agence

Demande d'information

Daniel Assélie • AgentMandataireCommerce.fr

Daniel Assélie Conseil en immobilier commercial 06 01 33 15 44